1170-Romo-Gulirisvej-170
Preview only — see all hotel photos
See all 21 photos
Hotel op de kaart tonen
1170-Romo-Gulirisvej-170
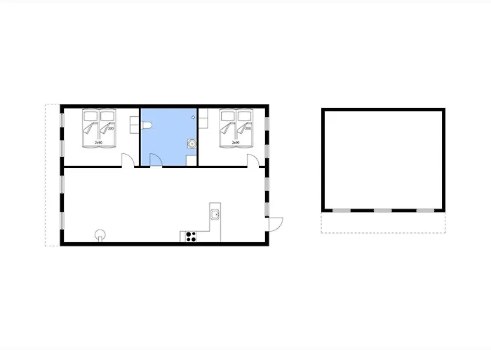
Als u in 1170-Romo-Gulirisvej-170 Appartement Sønderby van 97 m² verblijft, kunt u de Kerk van Ballum bereiken, gelegen op 7 km verderop. Met een terras tot hun beschikking kunnen gasten van het appartement genieten van een kust uitzicht op de zee.
De Sint-Clemenskerk bevindt zich binnen een autorit van 10 minuten van dit appartement, terwijl Havneby Engvej busstation op 10-minuten loopafstand tot het pand ligt. Op afstand van 8 km van 1170-Romo-Gulirisvej-170 Appartement vindt u Naturcenter Tonnisgard.
Bezoekers zullen genieten van het comfort van een badkamer met een droger in het appartement. Er is ook een douche.
In deze accommodatie kunnen de gasten gebruik maken van een ingerichte kitchenette met een oven en een vaatwasser voor hun eigen koken. Vejle sygehus treinstation is binnen 220 minuten rijden tot de accommodatie.
Voorzieningen
Hoofdvoorzieningen
- Wi-Fi
- Sportactiviteiten
- Huisdieren
Faciliteiten
- Roken is niet toegestaan
- WiFi
- Parkeerplaats
- Huisdieren toegestaan
- Golfbaan
- Verwarming
- Terras
- Tuinmeubelen